0
découvrir le bien
2 Pièce(s)
1 Chambre(s)

LYON 5 POINT DU JOUR APPARTEMENT TYPE 2 2EME ETAGE AVEC ASCENSEUR VUE DEGAGEE PARKING PRIVATIF

Lyon (69005)
Réf : CA31224

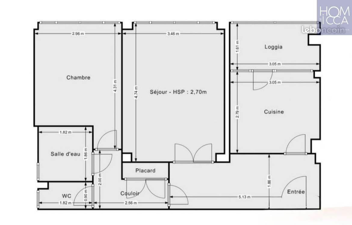
Situé dans le quartier recherché du Point du Jour, à proximité immédiate de Trion, cet appartement de type 2 de 56 m² habitables (52 m² Carrez) se trouve au 2ème étage sur 6 d’une résidence bien entretenue avec ascenseur.

Il se compose d’une entrée accueillante, d’une cuisine indépendante ouvrant sur une loggia de 4 m² orientée Nord-Est et offrant une vue dégagée sans vis-à-vis. Le séjour, actuellement recouvert de moquette, dissimule un beau parquet d’origine. Un espace nuit comprend la chambre de 10,5m² en parquet, un dégagement avec placard intégré, une salle d’eau avec douche à l’italienne et fenêtre ainsi qu’un WC séparé avec fenêtre.

Un réagencement est possible : vous pouvez créer une pièce de vie de 26 m² avec cuisine ouverte sur le séjour et une chambre donnant sur la loggia, pour un agencement moderne et fonctionnel (voir plan modifié sur la dernière photo)

En sous-sol, une cave saine offre un espace de rangement supplémentaire. Une place de parking privative extérieure est incluse dans le prix.

Les charges de copropriété incluent : chauffage, eau chaude et froide, entretien des espaces verts, gardien, ascenseur et syndic.

Le DPE est en classe E mais la rénovation énergétique de l'immeuble sera réalisée en 2026, intégralement à la charge du vendeur : isolation de la façade par l'extérieur, réfection étanchéité de la façade, installation d'une VMC, panneaux photovoltaïques, réfection chauffage

Vous apprécierez la luminosité, l’absence de vis-à-vis et la vue sur le Mont Verdun. Les bus C20, C20E, 46 et 49 sont au pied de l’immeuble et la gare Perrache est accessible en 10 minutes.

* VISITE VIRTUELLE DISPONIBLE *

Son prix est de 175.000€

Pour visiter et vous accompagner dans votre projet, contactez Christophe AVON, directeur d'agence au 06.82.16.24.75. Agence Homicca www.homicca.fr

Ce bien vous intéresse ?
Fieldset par défaut
Fieldset par défaut
Validation

* Champs obligatoires

Contacter l'agence
Validation
Les informations recueillies sur ce formulaire sont enregistrées dans un fichier informatisé par La Boite Immo agissant comme Sous-traitant du traitement pour la gestion de la clientèle/prospects de l'Agence / du Réseau qui reste Responsable du Traitement de vos Données personnelles.
La base légale du traitement repose sur l’intérêt légitime de l'Agence / du Réseau.
Elles sont conservées jusqu'à demande de suppression et sont destinées à l'Agence / au Réseau.
Conformément à la loi « informatique et libertés », vous pouvez exercer votre droit d'accès aux données vous concernant et les faire rectifier en contactant l'Agence / le Réseau.
Si vous estimez, après avoir contacté l'Agence / le Réseau, que vos droits « Informatique et Libertés » ne sont pas respectés, vous pouvez adresser une réclamation à la CNIL.
Nous vous informons de l’existence de la liste d'opposition au démarchage téléphonique « Bloctel », sur laquelle vous pouvez vous inscrire ici : https://www.bloctel.gouv.fr 
Dans le cadre de la protection des Données personnelles, nous vous invitons à ne pas inscrire de Données sensibles dans le champ de saisie libre
Ce site est protégé par reCAPTCHA, les Politiques de Confidentialité et les Conditions d'Utilisation de Google s'appliquent.

En Bref

Code postal 69005
Surface habitable (m²) 56 m²
Surface loi Carrez (m²) 52 m²
Nombre de chambre(s) 1
Nombre de pièces 2
Etage 2
Ascenseur OUI
Vue DEGAGEE
Nb de salle d'eau 1
Cuisine Séparée
Type de cuisine SEMI-EQUIPEE
Mode de chauffage Gaz
Type de chauffage Au sol
Format de chauffage Collectif
Interphone OUI
Loggia OUI
Cave OUI
Nombre de parking 1
Exposition Nord-Est
Année de construction 1964
Quartier POINT DU JOUR

Infos financières

Prix de vente 175 000 €
Les honoraires d'agence seront intégralement à la charge du vendeur  
Charges 190 €
Taxe foncière annuelle 850 €

Energie

Energie
DPE
GES