0
Exclusif
Nouveauté
découvrir le bien
3 Pièce(s)
2 Chambre(s)

A VENDRE LYON 9 (LA DUCHERE) APPARTEMENT 3 PIECES DE 65,90M² IMMEUBLE 2008

Lyon (69009)
Réf : CS371

À VENDRE EN EXCLUSIVITÉ – LYON 9e (La Duchère)



À deux pas du Lycée La Martinière Duchère, dans un écoquartier en plein développement, découvrez cet appartement 3 pièces de 65,90 m², idéalement situé au cœur des commerces et des transports.

** VISITE VIRTUELLE DISPONIBLE **

Installé au 3ᵉ étage avec ascenseur d’une résidence récente et sécurisée datant de 2009, ce bien séduit par son calme et sa luminosité, grâce à une exposition sud-ouest.

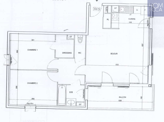
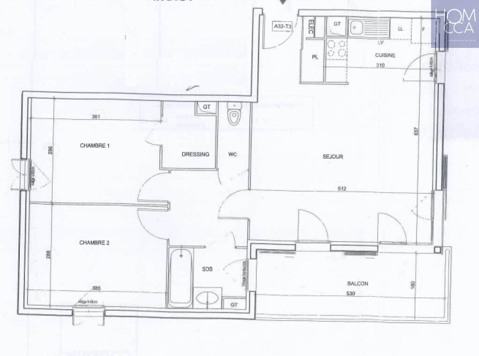
L’appartement s’ouvre sur une entrée avec placard, menant à une agréable pièce de vie de 28 m² avec cuisine meublée et partiellement équipée. Cet espace convivial se prolonge par un balcon-terrasse de 9 m², parfait pour profiter des beaux jours. L’espace nuit, bien distinct, offre deux chambres confortables, dont une avec dressing aménagé. Une salle de bains et des toilettes séparées complètent l’ensemble.

La localisation constitue un véritable atout : toutes les commodités sont accessibles au pied de l’immeuble, et la Gare de Lyon-Vaise est rapidement accessible en seulement 5 minutes grâce aux nombreuses lignes de bus (C14, C6, 89, 66, 21, S11)

Un garage sécurisé en sous-sol avec borne de recharge pour véhicule électrique est proposé en supplément au prix de 15 000 €

Les charges mensuelles restent maîtrisées à 122 €, incluant l’eau chaude et le chauffage. La taxe foncière s’élève à 1 005 € par an



Prix de vente : 195 000 € (honoraires à la charge du vendeur)



Pour tout renseignement ou organiser une visite, contactez Cyril SILVY


Les informations sur les risques auxquels ce bien est exposé sont disponibles sur le site Géorisques
Ce bien vous intéresse ?
Fieldset par défaut
Fieldset par défaut
Validation

* Champs obligatoires

Contacter l'agence
Validation
Les informations recueillies sur ce formulaire sont enregistrées dans un fichier informatisé par La Boite Immo agissant comme Sous-traitant du traitement pour la gestion de la clientèle/prospects de l'Agence / du Réseau qui reste Responsable du Traitement de vos Données personnelles. La base légale du traitement repose sur l'intérêt légitime de l'Agence / du Réseau. Elles sont conservées jusqu'à demande de suppression et sont destinées à l'Agence / au Réseau. Conformément à la loi « informatique et libertés », vous disposez des droits d’accès, de rectification, d’effacement, d’opposition, de limitation et de portabilité de vos données. Vous pouvez retirer votre consentement à tout moment en contactant directement l’Agence / Le Réseau. Consultez le site https://cnil.fr/fr pour plus d’informations sur vos droits. Si vous estimez, après avoir contacté l'Agence / le Réseau, que vos droits « Informatique et Libertés » ne sont pas respectés, vous pouvez adresser une réclamation à la CNIL. Nous vous informons de l’existence de la liste d'opposition au démarchage téléphonique « Bloctel », sur laquelle vous pouvez vous inscrire ici : https://www.bloctel.gouv.fr Dans le cadre de la protection des Données personnelles, nous vous invitons à ne pas inscrire de Données sensibles dans le champ de saisie libre.
Ce site est protégé par reCAPTCHA, les Politiques de Confidentialité et les Conditions d'Utilisation de Google s'appliquent.

En Bref

Code postal 69009
Surface habitable (m²) 65,90 m²
Surface loi Carrez (m²) 65,90 m²
Nombre de chambre(s) 2
Nombre de pièces 3
Etage 3
Ascenseur OUI
Vue Jardin
Nb de salle de bains 1
Cuisine Américaine
Type de cuisine SEMI-EQUIPEE
Mode de chauffage Granules, Granules
Type de chauffage Radiateur, Radiateur
Format de chauffage TRAD_FORMAT_CHAUFF_URBAIN, TRAD_FORMAT_CHAUFF_URBAIN
Balcon OUI
Nombre de garage 1
Cave NON
Exposition Sud-Ouest
Année de construction 2009

Infos financières

Prix de vente honoraires TTC inclus 195 000 €
Charges 121,81 €
Taxe foncière annuelle 1 005 €

Energie

Energie
DPE
GES