0
5 Pièce(s)
3 Chambre(s)

A VENDRE LIMONEST CENTRE - MAISON INDIVIDUELLE DE 150M² AVEC GARAGE SUR PARCELLE DE 669M²

Limonest (69760)
Réf : JS196

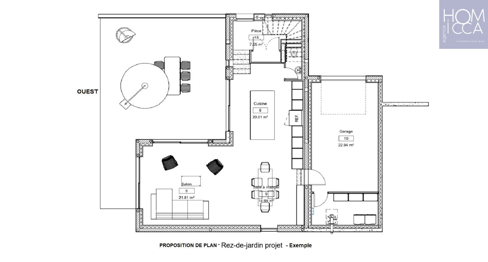
Au calme, Secteur Chemin du Bois d'Ars-l'Agora, au COEUR DU VILLAGE DE LIMONEST, venez découvrir cette maison de 2024 d'environ 150 m² habitables vendue bâtie avec menuiseries, volets, crépis, arrivée des réseaux, portail, portes d'accès, clôture du terrain, chemin d'accès bétonné etc....

Le garage attenant fermé et communiquant avec la maison offre un espace de 23 m² avec la possibilité de créer une buanderie.

-Porte de garage sectionnelle isolée HARMONIC (fabrication allemande).

-Menuiseries ALU de fabrication française sous DTA certifié CSBT. Vitrage gaz argon de marque KAWNEER avec rupteurs thermiques

-Volets electriques de marque française BUBENDORFF (vitrage A2P anti effraction lorsqu'il n'y a pas de volets)

-Portes pavillon avec serrure à 5 points

-Portail profilé ALU


Edifiée sur une parcelle de 669m² clos, la maison est vendue bâtie et un bardage en bois d'EPICEA en façade. Toute la maison est personnalisable à votre goût : choisissez votre isolation, vos matériaux, vos équipements, votre agencement, votre décoration !


Des plans sont disponibles pour vous accompagner dans ce projet de création.


Les murs sont là, les réseaux sont installés, il n'y a plus qu'à apporter votre touche personnelle selon vos goûts, vos envies et votre vision de votre future maison.


L'environnement est très calme, vous êtes à 250 mètres des commerces de la rue principale, 600 mètres de l'Agora Pôle culturel, et quelques pas des Ecoles, Collège et Lycée. Le BUS 21 est à 3 minutes à pied. Plusieurs JUNIORS pour les collèges, JEAN PHILIPPE RAMEAU (public Champagne au Mont d'Or) - FROMENTE ST FRANCOIS (privé St Didier au Mont d'Or) - INSTITUTION NOTRE DAME DE BELLEGARDE (privé Neuville s/ Saône) et LES LAZARISTES LA SALLE (privé de Limonest)

JD35 - JD77 - JD183 - JD186 - JD621 - JD623


Pour visiter et vous projeter sur ce joli projet, contactez directement Julie SILVY (agent commercial EI - RSAC 838469377) au 06 08 57 87 26


PRIX DE VENTE 549.000€ FAI - Un devis chiffré de tous les travaux et finitions a été établi et est personnalisable (environ 130 à 140.000€ de travaux restants).

Ce bien vous intéresse ?
Fieldset par défaut
Fieldset par défaut
Validation

* Champs obligatoires

Contacter l'agence
Validation
Les informations recueillies sur ce formulaire sont enregistrées dans un fichier informatisé par La Boite Immo agissant comme Sous-traitant du traitement pour la gestion de la clientèle/prospects de l'Agence / du Réseau qui reste Responsable du Traitement de vos Données personnelles.
La base légale du traitement repose sur l’intérêt légitime de l'Agence / du Réseau.
Elles sont conservées jusqu'à demande de suppression et sont destinées à l'Agence / au Réseau.
Conformément à la loi « informatique et libertés », vous pouvez exercer votre droit d'accès aux données vous concernant et les faire rectifier en contactant l'Agence / le Réseau.
Si vous estimez, après avoir contacté l'Agence / le Réseau, que vos droits « Informatique et Libertés » ne sont pas respectés, vous pouvez adresser une réclamation à la CNIL.
Nous vous informons de l’existence de la liste d'opposition au démarchage téléphonique « Bloctel », sur laquelle vous pouvez vous inscrire ici : https://www.bloctel.gouv.fr 
Dans le cadre de la protection des Données personnelles, nous vous invitons à ne pas inscrire de Données sensibles dans le champ de saisie libre
Ce site est protégé par reCAPTCHA, les Politiques de Confidentialité et les Conditions d'Utilisation de Google s'appliquent.

En Bref

Code postal 69760
Surface habitable (m²) 150 m²
surface terrain 669 m²
Surface loi Carrez (m²) 150 m²
Nombre de chambre(s) 3
Nombre de pièces 5
Nombre de niveaux 2
Nb de salle de bains 2
Cuisine Américaine
Mode de chauffage Autre
Type de chauffage Autre
Format de chauffage Individuel
Terrasse OUI
Nombre de garage 1
Nombre de parking 4
Exposition Ouest
Année de construction 2024
Terrain piscinable OUI

Infos financières

Prix de vente 549 000 €
Les honoraires d'agence seront intégralement à la charge du vendeur  

Energie

Energie
DPE
GES