0
Exclusif
Coup de coeur
4 Pièce(s)
2 Chambre(s)

À VENDRE LISSIEU - CHATEAU DE LA ROUE - APPARTEMENT T3/4 EN RDJ AVEC PARKINGS ET CAVE

Lissieu (69380)
Réf : DELEGJS03

CO-EXCLUSIVITE Homicca

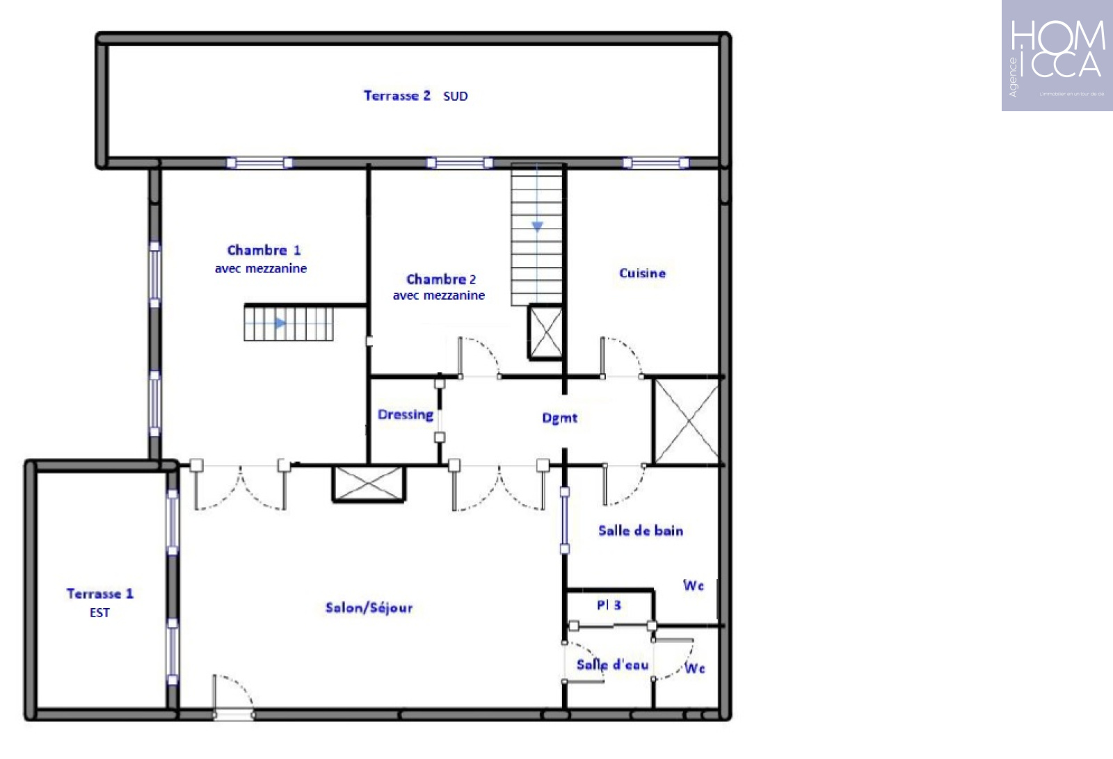
Au sein du célèbre Château de la Roue, datant du 18ème siècle, niché dans un magnifique parc, venez découvrir ce bel appartement de 130,37 m² carrez et 146.15 m² au total avec ses mezzanines.

 

Au coeur du Domaine, en rez-de-jardin, il bénéficie de deux belles terrasses extérieures de 53 m² au SUD et de 13 m² à l'EST.

 

Vous serez charmé dès votre arrivée par cette entrée dans la pièce principale lumineuse de près de 39m². On accède ensuite à deux grandes chambres avec chacune leur mezzanine (il est possible de créer une 3ème chambre), une cuisine indépendante avec accès direct à la terrasse côté Sud, une salle de bains récente avec toilettes et douche, une pièce réunissant des toilettes indépendantes et fermées, un lavabo (possibilité de faire une buanderie par exemple) et un placard- dressing.

 

Le lieu est chargé d'histoire avec une magnifique hauteur sous plafond, de grandes fenêtres toute hauteur et des cheminées en pierre. Les chambres sont grandes et peuvent être remodelées : 28 m2 pour la première (dont 13m² de mezzanine) et 30 m² pour la seconde (dont 14 m² de mezzanine).


Pour compléter l'appartement, il y a deux places de parking numérotées et une grande cave de 13,42m². Il y a également deux autres emplacements sur une partie jardin qui permettent de se projeter sur un aménagement de carrés potagers.


LE PRIX DE VENTE pour l'ensemble des 6 lots (appartement, 2 parkings, 2 emplacements végétalisés et cave) est de 299.000€ FAI (honoraires charge vendeur)


POUR VISITER ce bel appartement dans un cadre majestueux : contactez directement Julie SILVY 06 08 57 87 26 (agent commercial EI - RSAC 838469377)

 

 

Infos complémentaires : Taxe foncière 1021€ - Les charges de copropriété comprennent l'ensemble de l'énergie : chauffage par radiateurs avec répartiteurs pour une individualisation à 70%, l'eau froide et l'eau chaude, + l'entretien de la copropriété et des espaces verts.


Plusieurs stationnements visiteurs dans le Domaine - Parc arboré - fontaine décorative - Excellent emplacement dans un cadre privilégié - BUS 61 et Ramassages scolaires à deux pas (JD 306, 370, 521 : J-Ph RAMEAU, Sacré Coeur, Notre-Dame de Lourdes), Commerces à 10 minutes à pied (Lissieu), Bus pour GARE DE VAISE Métro D (ligne 61) Bus TER 115, .... Aux portes du Beaujolais, de la Vallée de Lazergues et des Monts d'Or.


.


Les informations sur les risques auxquels ce bien est exposé sont disponibles sur le site Géorisques
Ce bien vous intéresse ?
Fieldset par défaut
Fieldset par défaut
Validation

* Champs obligatoires

Contacter l'agence
Validation
Les informations recueillies sur ce formulaire sont enregistrées dans un fichier informatisé par La Boite Immo agissant comme Sous-traitant du traitement pour la gestion de la clientèle/prospects de l'Agence / du Réseau qui reste Responsable du Traitement de vos Données personnelles.
La base légale du traitement repose sur l’intérêt légitime de l'Agence / du Réseau.
Elles sont conservées jusqu'à demande de suppression et sont destinées à l'Agence / au Réseau.
Conformément à la loi « informatique et libertés », vous pouvez exercer votre droit d'accès aux données vous concernant et les faire rectifier en contactant l'Agence / le Réseau.
Si vous estimez, après avoir contacté l'Agence / le Réseau, que vos droits « Informatique et Libertés » ne sont pas respectés, vous pouvez adresser une réclamation à la CNIL.
Nous vous informons de l’existence de la liste d'opposition au démarchage téléphonique « Bloctel », sur laquelle vous pouvez vous inscrire ici : https://www.bloctel.gouv.fr 
Dans le cadre de la protection des Données personnelles, nous vous invitons à ne pas inscrire de Données sensibles dans le champ de saisie libre
Ce site est protégé par reCAPTCHA, les Politiques de Confidentialité et les Conditions d'Utilisation de Google s'appliquent.

En Bref

Code postal 69380
Surface habitable (m²) 130,37 m²
Surface loi Carrez (m²) 130,37 m²
Nombre de chambre(s) 2
Nombre de pièces 4
Ascenseur NON
Vue Intérieur copropriété, Monts d'Or, Parc, Verdure, ....
Nb de salle d'eau 1
Cuisine Séparée
Type de cuisine SEMI-EQUIPEE
Interphone OUI
Terrasse OUI
Cave OUI
Nombre de parking 2
Surface cave (m²) 13
Exposition Sud-Est
Année de construction 1775

Infos financières

Prix de vente honoraires TTC inclus 299 000 €
Charges 416 €
Taxe foncière annuelle 1 021 €

Energie

Energie
DPE
GES